鈴木敦子「Appear」展
鈴木敦子「Appear」展

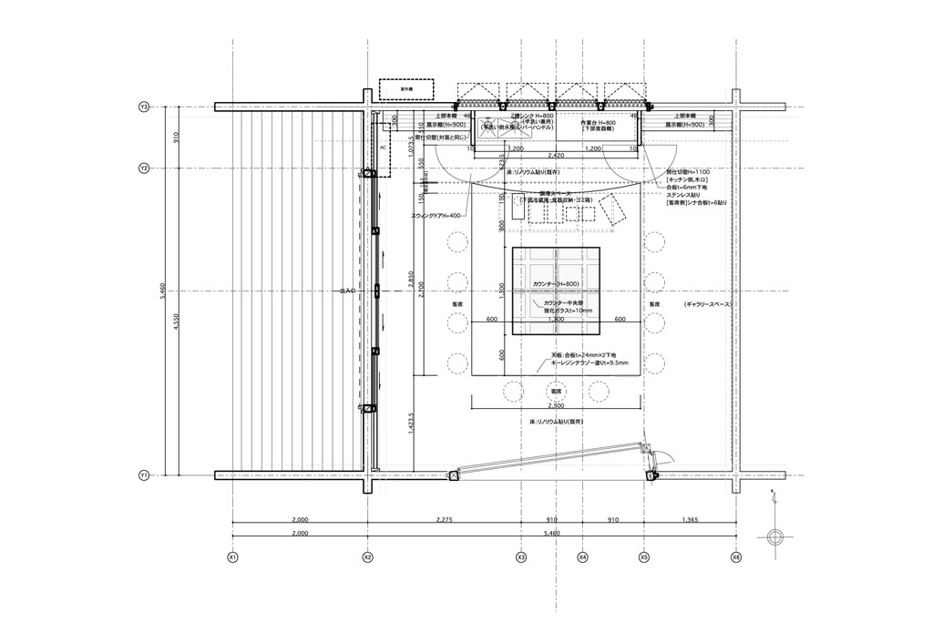
トトノエルギャラリーカフェ全体のレイアウト、展示スペースについて、ご紹介します。
各図面は拡大表示ができます。ご確認ください。

平面図
ギャラリー全体図面
展示壁面 南側
展示壁面・窓 南側
展示壁面東側
展示壁面 東側
展示壁面北側
展示壁面 北側